Solar en venda a Sarria

Ref: T3184

Superfície: 338 m²

Distribució:

Solar a Sarria per projectar la casa dels teus somnis
Solar urbà de 181 m² amb qualificació 12 (casc antic), ideal per a la construcció dhabitatge unifamiliar.
Permet edificar-hi planta baixa + 1 planta + soterrani, amb una edificabilitat total aproximada de 338 m².
L'ocupació per planta és de 110,81 m2, cosa que permet disposar d'un jardí posterior d'aproximadament 70 m2, amb orientació sud, amb possibilitat de piscina.
S'inclou plaça de pàrquing doble al carrer paral·lel.

Projecte orientatiu amb ascensor a totes les plantes.
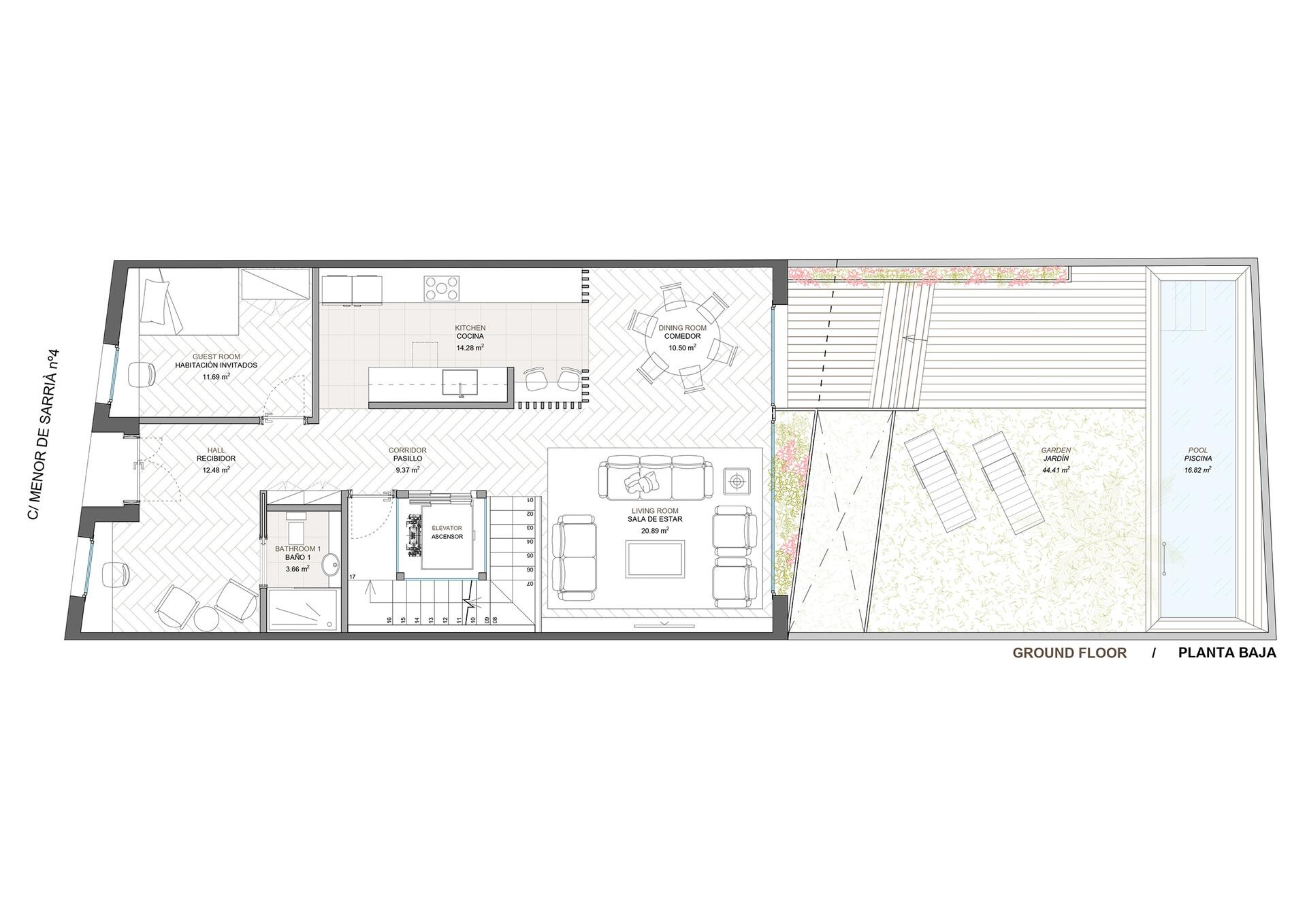
Hi ha un projecte d'habitatge unifamiliar que serveix com a referència (no vinculant), optimitzant l'edificabilitat del solar:
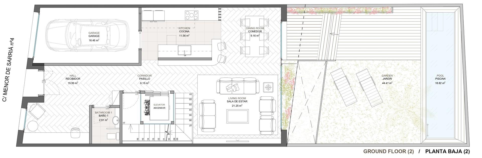
Planta baixa (104,18 m²)
Rebedor, despatx o habitació, bany complet (també lavabo de cortesia), cuina i ampli saló-menjador amb sortida directa al jardí. Ascensor amb accés a totes les plantes. En aquesta planta també s'hi podria ubicar una plaça de garatge, si es prefereix.
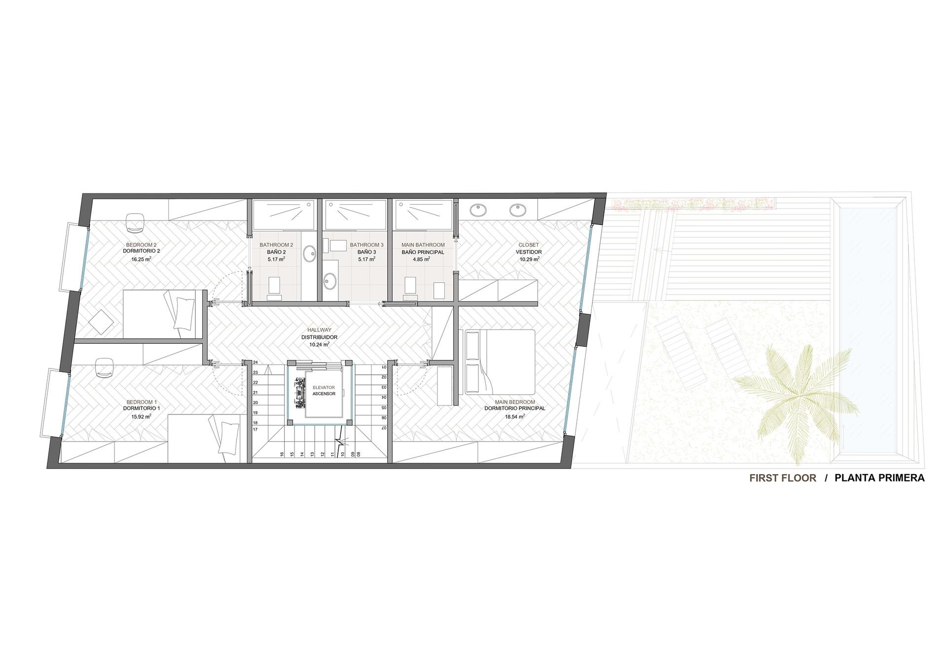
Planta primera (107,99 m²)
Suite principal amb vistes al jardí, vestidor i bany privat. Dues suites addicionals d'uns 12 m², cadascuna amb bany propi.
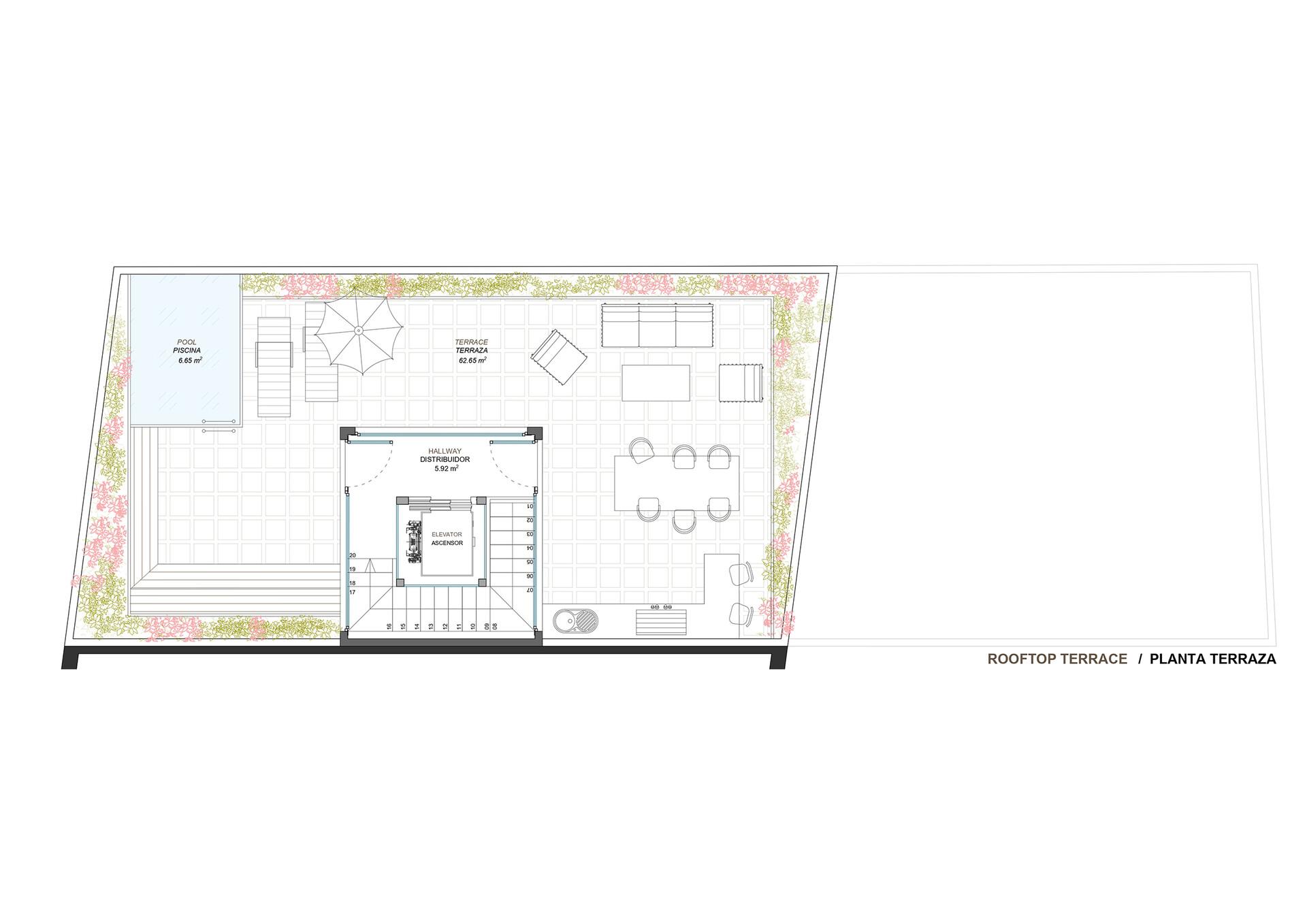
Planta segona / coberta (15,05 m²)
Accés per escala i ascensor. Espai ideal com a terrassa chill-out, amb possibilitat de piscina, zona de barbacoa i àrea de descans.
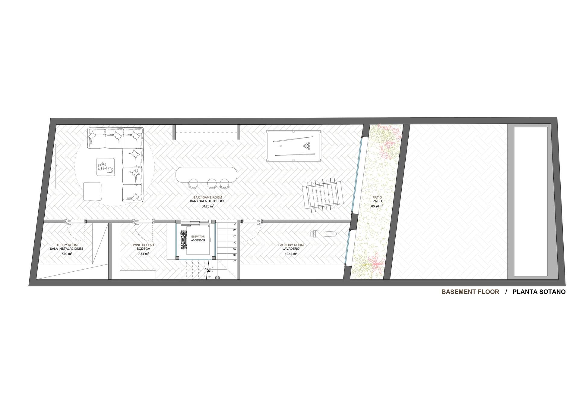
Soterrani (110,81 m²)
Amb ventilació i llum natural des del jardí mitjançant desnivell. Espai polivalent: bugaderia, sala de màquines i zona multifuncional (cinema, gimnàs, jocs, etc.).
Terrassa a coberta: on ubicar zona de barbacoa, chillout i piscina.

El projecte representat en plànols i renders correspon a una proposta constructiva viable segons la normativa urbanística vigent.
En cas dinterès, es pot facilitar el contacte amb larquitecte responsable del disseny.

El preu indicat no inclou impostos ni despeses derivades de la compravenda (ITP/IVA, notaria i registre). Els honoraris d'intermediació de Rustic Corner estan inclosos al preu. La informació és merament orientativa i pot canviar sense avís previ.

Preu: 2.250.000€

Compartir